Kielce, Posłowice

Dom na sprzedaż

Opis nieruchomości

Na sprzedaż środkowy segment w stanie deweloperskim o powierzchni 162,54 m2 (powierzchnia użytkowa 128,49 m2) zlokalizowany na działce o powierzchni 204,49 m2 przy ulicy Posłowickiej w Kielcach.

Segment składa się z:
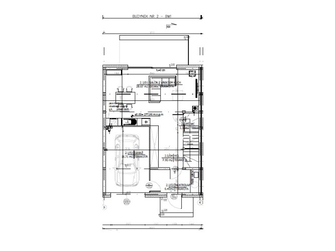
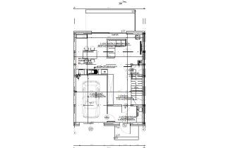
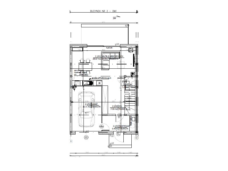
* Parteru:
- wiatrołap,
- salon z aneksem kuchennym z wyjściem na taras,
- hol,
- WC,
- garaż,

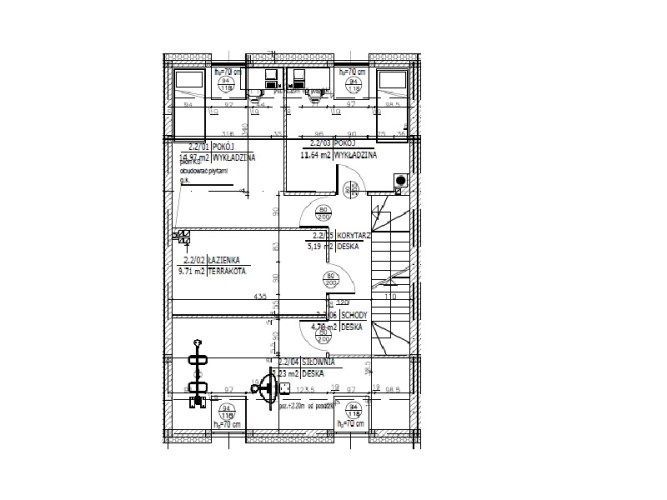
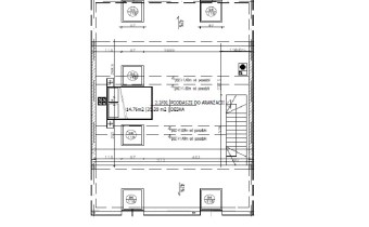
* Piętra:
- komunikacja,
- 3 pokoje,
- łazienka,

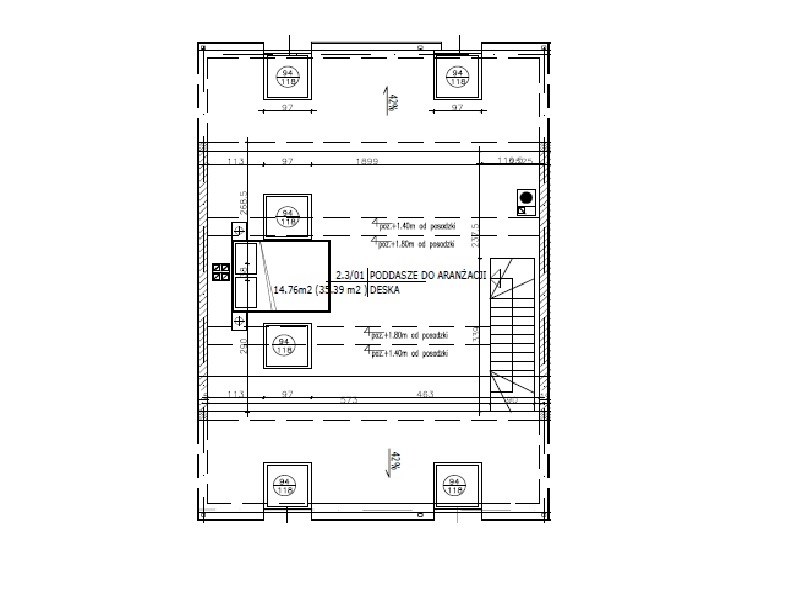
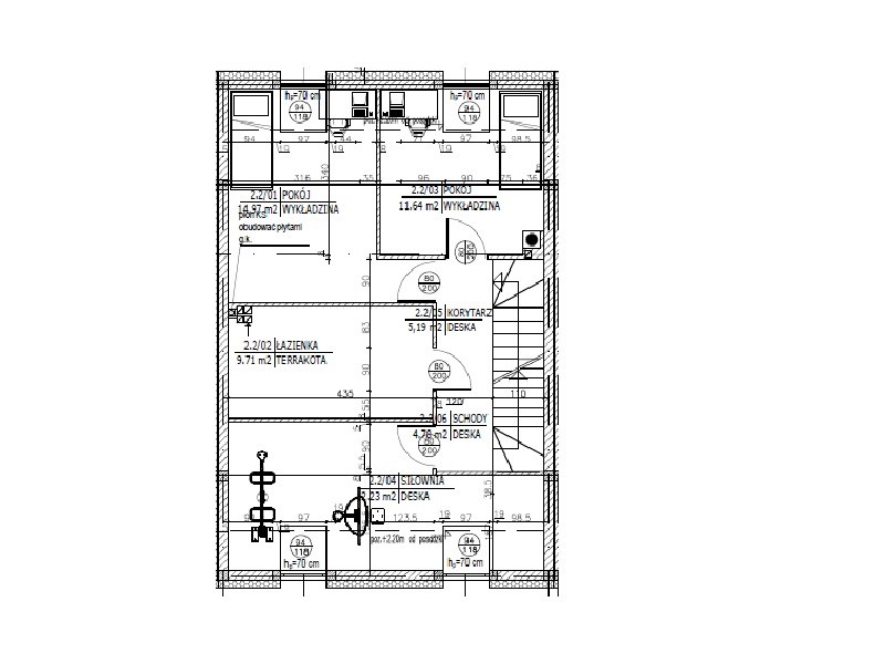
* Poddasza:
- pokój.

Ściany zewnętrzne oraz wewnętrzne wybudowane z pustaka Porotherm, docieplone styropianem 18 cm. Dach kryty blachą płaską. 
Ogrzewanie domu oraz ciepła woda z pompy ciepła (w cenie domu).
Ogrzewanie podłogowe na parterze oraz piętrze. W salonie zaprojektowany kominek opalany drewnem.

II etap inwestycji składający się z 4 segmentów. Na zdjęciach I etap przed zakończeniu budowy. Możliwość zakupienia segmentu skrajnego w cenie 640 000 zł.

Film z I etapu inwestycji: 
https://youtu.be/vxuugMfBPis

Atrakcyjna lokalizacja w sąsiedztwie terenów zielonych oraz lasu. Odległość od centrum miasta około 7 km.

Kontakt: 537 193 491

Nota prawna

Opis oferty zawarty na stronie internetowej sporządzany jest na podstawie oględzin nieruchomości oraz informacji uzyskanych od właściciela, może podlegać aktualizacji i nie stanowi oferty określonej w art. 66 i następnych K.C.

Szczegóły oferty

Symbol oferty ASN-DS-2183
Powierzchnia 162,54 m²
Powierzchnia użytkowa 128,49 m²
Powierzchnia działki 449 m²
Liczba pokoi 5
Rodzaj domu szereg środkowy
Technologia budowlana bloczki betonowe
Liczba pięter w budynku 1
Wymiary działki 7x29 m
Garaż w budynku
Stan prawny Własność
Okna PCV
Instalacje nowe
Balkon brak
Liczba tarasów 1
Zagosp. działki zagospodarowana
Ukształtowanie działki płaska
Kształt działki prostokąt
Pokrycie dachu blacha
Pozwolenie na użytkowanie tak
Stan budynku do wykończenia
Ogrodzenie działki ogrodzona
Rok budowy 2027
Gaz w ulicy
Woda jest
Dojazd droga utwardzona
Otoczenie las
Ogrzewanie pompa ciepła
Tarasy taras
Prąd jest
Kanalizacja miejska

Pomieszczenia

Powierzchnia pokoi 35,39; 28,67; 17,86; 14,97; 11,64 m2
Podłogi pokoi wylewka
Typ kuchni jasna z oknem
Rodzaj kuchni aneks kuchenny - połączony z salonem
Powierzchnia kuchni 28,67 m2
Podłoga kuchni wylewka
Typ łazienki razem z wc
Liczba łazienek 1
Powierzchnia łazienki 9,71 m2
Glazura łazienki bez glazury
Podłoga łazienki wylewka
Liczba WC 1
Powierzchnia WC 1,5 m2
Glazura WC bez glazury
Podłoga WC wylewka
Liczba przedpokoi 2
Powierzchnia przedpokoi 5,19 m2
Podłoga przedpokoi wylewka

Lokalizacja

Kalkulator kredytowy

PLN
%
Wysokość raty

Kalkulator kosztów

PLN
PLN
PLN
PLN
PLN
PLN
%
PLN
Podatek od czynności cywilno-prawnych
Taksa notarialna (opłata notarialna)
VAT od taksy notarialnej (opłaty notarialnej)
Wniosek do WKW
VAT od wniosku do WKW
Prowizja agencji nieruchomości
VAT od prowizji agencji nieruchomości
Wypisy aktu notarialnego - około
RAZEM (cena + opłaty)

Podobne oferty

video
dom na sprzedaż - Kielce, Zalesie

dom na sprzedaż

Kielce, Zalesie
6 pokoi 220,00 m2 3 545,45 zł/m2
dom na sprzedaż - Kielce, Gruchawka

dom na sprzedaż

Kielce, Gruchawka
4 pokoje 175,00 m2 3 200,00 zł/m2
oferta na wyłączność
video
dom na sprzedaż - Kielce, Posłowice

dom na sprzedaż

Kielce, Posłowice
5 pokoi 140,29 m2 4 561,98 zł/m2

Napisz do nas

Proszę wypełnić to pole
Proszę wypełnić to pole
Proszę wypełnić to pole
Proszę wypełnić to pole
Trwa wysyłanie...

Ta strona wykorzystuje pliki cookies w celach statystycznych oraz w celu dostosowania naszych serwisów do indywidualnych potrzeb klientów. Zmiany ustawień dotyczących plików cookie można dokonać w dowolnej chwili modyfikując ustawienia przeglądarki. Korzystanie z tej strony bez zmian ustawień dotyczących cookies oznacza, że będą one zapisane w pamięci urządzenia.

rozumiem