Piekoszów, Szczukowice

Dom na sprzedaż

Opis nieruchomości

Na sprzedaż nowa, kameralna inwestycja obejmująca 4 domy (2 bliźniaki) w miejscowości Szczukowice (gmina Piekoszów). Każda połowa bliźniaka posiada 202,17 m2 powierzchni użytkowej (149,88 m2 powierzchni całkowitej) i zlokalizowana jest na działce o powierzchni 500 m2 (wymiary około 19 x 26 m). Cena domu dotyczy stanu deweloperskiego.

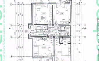
Dom składa się z:
*parteru: przedpokój, salon z aneksem kuchennym z wyjściem na taras z kostki brukowej, łazienka, kotłownia, garaż (18,2 m2);
*piętra: przedpokój, 4 sypialnie, łazienka;
*strychu.

Budynki wybudowane z betonu komórkowego, pokrycie dachu dachówką płaską. Ocieplenie styropian 18 cm. Okna 3 szybowe firmy Apolloplast. Ogrzewanie pompą ciepła.. Istnieje możliwość zamontowania kominka. Ogrzewanie podłogowe na parterze oraz piętrze.

Atrakcyjna lokalizacja w sąsiedztwie zabudowy jednorodzinnej. Odległość od Kielc około 7 km.

Kontakt: 537 193 491

Nota prawna

Opis oferty zawarty na stronie internetowej sporządzany jest na podstawie oględzin nieruchomości oraz informacji uzyskanych od właściciela, może podlegać aktualizacji i nie stanowi oferty określonej w art. 66 i następnych K.C.

Szczegóły oferty

Symbol oferty ASN-DS-1882
Powierzchnia 202,17 m²
Powierzchnia użytkowa 149,88 m²
Powierzchnia działki 500 m²
Rodzaj domu bliźniak
Technologia budowlana beton komórkowy
Wymiary działki 19x26 m
Garaż jest
Okna PCV
Instalacje nowe
Balkon jest
Liczba balkonów 2
Zagosp. działki zagospodarowana
Ukształtowanie działki płaska
Kształt działki prostokąt
Pokrycie dachu dachówka
Stan budynku do wykończenia
Ogrodzenie działki ogrodzona
Rok budowy 2024
Gaz brak
Woda jest
Dojazd droga utwardzona
Otoczenie działki zabudowane
Ogrzewanie pompa ciepła
Prąd jest
Kanalizacja tak

Pomieszczenia

Podłogi pokoi wylewka
Typ kuchni aneks kuchenny połączony z jadalnią i salonem
Rodzaj kuchni aneks kuchenny
Podłoga kuchni wylewka
Typ łazienki razem z wc
Liczba łazienek 2
Glazura łazienki bez glazury
Podłoga łazienki wylewka
Liczba przedpokoi 2
Podłoga przedpokoi wylewka

Lokalizacja

Kalkulator kredytowy

PLN
%
Wysokość raty

Kalkulator kosztów

PLN
PLN
PLN
PLN
PLN
PLN
%
PLN
Podatek od czynności cywilno-prawnych
Taksa notarialna (opłata notarialna)
VAT od taksy notarialnej (opłaty notarialnej)
Wniosek do WKW
VAT od wniosku do WKW
Prowizja agencji nieruchomości
VAT od prowizji agencji nieruchomości
Wypisy aktu notarialnego - około
RAZEM (cena + opłaty)

Podobne oferty

dom na sprzedaż - Piekoszów

dom na sprzedaż

Piekoszów
7 pokoi 302,40 m2 2 281,75 zł/m2
dom na sprzedaż - Piekoszów

dom na sprzedaż

Piekoszów
5 pokoi 140,00 m2 4 071,43 zł/m2

Napisz do nas

Proszę wypełnić to pole
Proszę wypełnić to pole
Proszę wypełnić to pole
Proszę wypełnić to pole
Trwa wysyłanie...

Ta strona wykorzystuje pliki cookies w celach statystycznych oraz w celu dostosowania naszych serwisów do indywidualnych potrzeb klientów. Zmiany ustawień dotyczących plików cookie można dokonać w dowolnej chwili modyfikując ustawienia przeglądarki. Korzystanie z tej strony bez zmian ustawień dotyczących cookies oznacza, że będą one zapisane w pamięci urządzenia.

rozumiem