Jędrzejów

Mieszkanie na sprzedaż

Opis nieruchomości

Na sprzedaż przestronne i jasne mieszkanie o powierzchni 32,20 m², położone na II piętrze nowoczesnego apartamentowca w prestiżowej inwestycji w Jędrzejowie. To idealna propozycja dla osób szukających komfortu, nowoczesnych udogodnień i spokojnej, zielonej okolicy — a jednocześnie bliskości centrum.

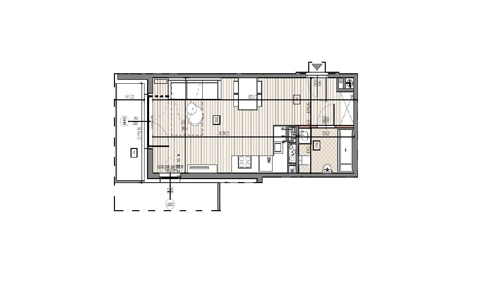
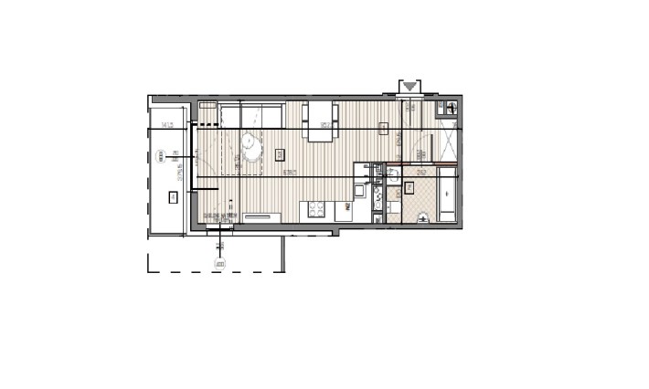
UKŁAD MIESZKANIA

Mieszkanie sprzedawane w stanie deweloperskim, z funkcjonalnym i dobrze przemyślanym rozkładem:

  • hol – 5,0 m²

  • salon z aneksem kuchennym –22,87 

  • łazienka – 4,33 m²

Dużym atutem lokalu jest  balkon o powierzchni aż 4,78 m².

UDOGODNIENIA DLA MIESZKAŃCÓW

Budynek oferuje wyjątkową strefę relaksu — dostępną wyłącznie dla mieszkańców:

  • sauna,

  • siłownia,

  • pokój zabaw dla dzieci,

  • sala do majsterkowania.                                                             

Dodatkowo inwestycja została wyposażona w nowoczesne udogodnienia „smart”, takie jak bezkluczowy dostęp do budynku oraz możliwość rezerwacji przestrzeni wspólnych — co znacząco zwiększa komfort codziennego użytkowania.

To rzadko spotykany standard w tej lokalizacji i ogromna wartość dodana na co dzień.

INFRASTRUKTURA I OTOCZENIE

Wokół inwestycji zaprojektowano teren zielony z miejscami rekreacji, placem zabaw i oświetleniem nastrojowym.

Dodatkowo w bezpośrednim sąsiedztwie znajdują się:

  • park miejski,

  • zalew,

  • ścieżki spacerowe i rowerowe.

To idealne miejsce dla rodzin, par i osób ceniących spokój oraz kontakt z naturą.

INFORMACJE O BUDYNKU

  • nowoczesny, pięciokondygnacyjny projekt

  • 57 mieszkań o zróżnicowanych powierzchniach

  • 9 lokali usługowych na parterze

  • wszystkie mieszkania z balkonami/tarasami

  • ogrzewanie z własnej kotłowni

  • winda

DODATKOWE MOŻLIWOŚCI

  • miejsce postojowe w garażu podziemnym: 48 000 zł

  • komórka lokatorska: 4000 zł/m² (różne metraże)

TERMIN ODDANIA

III kwartał 2026 r.

Nota prawna

Opis oferty zawarty na stronie internetowej sporządzany jest na podstawie oględzin nieruchomości oraz informacji uzyskanych od właściciela, może podlegać aktualizacji i nie stanowi oferty określonej w art. 66 i następnych K.C.

Szczegóły oferty

Symbol oferty ASN-MS-2144
Powierzchnia 32,20 m²
Powierzchnia użytkowa 32,20 m²
Powierzchnia balkonów/tarasów 4,78 m²
Liczba pokoi 1
Piętro 2
Rodzaj budynku blok
Technologia budowlana tradycyjna
Liczba pięter w budynku 4
Garaż garaż podziemny
Stan lokalu deweloperski
Stan prawny Własność
Instalacje nowe
Balkon jest
Liczba balkonów 1
Rok budowy 2026
Plac zabaw tak
Gaz jest
Woda jest
Dojazd asfalt
Otoczenie park
Ogrzewanie gazowe
Winda tak
Usytuowanie narożne

Pomieszczenia

Powierzchnia pokoi 22,87 m2
Podłogi pokoi wylewka
Typ kuchni jasna z oknem
Rodzaj kuchni aneks kuchenny
Powierzchnia kuchni 22,87 m2
Podłoga kuchni wylewka
Typ łazienki razem z wc
Liczba łazienek 1
Powierzchnia łazienki 4,33 m2
Podłoga łazienki wylewka
Liczba przedpokoi 1
Powierzchnia przedpokoi 5 m2
Podłoga przedpokoi wylewka

Lokalizacja

Kalkulator kredytowy

PLN
%
Wysokość raty

Kalkulator kosztów

PLN
PLN
PLN
PLN
PLN
PLN
%
PLN
Podatek od czynności cywilno-prawnych
Taksa notarialna (opłata notarialna)
VAT od taksy notarialnej (opłaty notarialnej)
Wniosek do WKW
VAT od wniosku do WKW
Prowizja agencji nieruchomości
VAT od prowizji agencji nieruchomości
Wypisy aktu notarialnego - około
RAZEM (cena + opłaty)

Podobne oferty

nowa oferta
mieszkanie na sprzedaż - Jędrzejów

mieszkanie na sprzedaż

Jędrzejów
2 pokoje 32,36 m2 9 998,98 zł/m2

Napisz do nas

Proszę wypełnić to pole
Proszę wypełnić to pole
Proszę wypełnić to pole
Proszę wypełnić to pole
Trwa wysyłanie...

Ta strona wykorzystuje pliki cookies w celach statystycznych oraz w celu dostosowania naszych serwisów do indywidualnych potrzeb klientów. Zmiany ustawień dotyczących plików cookie można dokonać w dowolnej chwili modyfikując ustawienia przeglądarki. Korzystanie z tej strony bez zmian ustawień dotyczących cookies oznacza, że będą one zapisane w pamięci urządzenia.

rozumiem