Kielce, Centrum, św. Leonarda

Lokal na sprzedaż

Opis nieruchomości

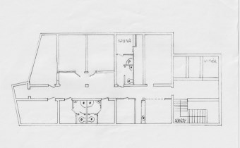
Na sprzedaż lokal o powierzchni 144 m2 zlokalizowany na poziomie -1 w nowoczesnym prestiżowym budynku przy ul. Leonarda w Kielcach.  Lokal obecnie składa się z recepcji, 3 łazienek, sauny, 4 gabinetów/pomieszczeń biurowych, schowka oraz pomieszczenia technicznego. Większość ścianek w lokalu to ścianki działo dlatego istnieje możliwość łatwego przerobienia układy pod własne potrzeby. W ostatnich latach w lokalu był salon kosmetyczny, wcześniej siłownia. 
Lokal w bardzo dobrym stanie technicznym. Wyposażony w nowoczesny system wentylacji powietrza, instalację alarmową. 

Idealna lokalizacja w nowoczesnym budynku usługowo-biurowym w centrum miasta o dużej rozpoznawalności. Przed budynkiem duża ilość ogólnodostępnych miejsc postojowych.

Nota prawna

Opis oferty zawarty na stronie internetowej sporządzany jest na podstawie oględzin nieruchomości oraz informacji uzyskanych od właściciela, może podlegać aktualizacji i nie stanowi oferty określonej w art. 66 i następnych K.C.

Szczegóły oferty

Symbol oferty ASN-LS-2162
Powierzchnia 144,00 m²
Piętro piwnica
Rodzaj budynku biurowo-usługowy
Opłaty w czynszu administracja, Części wspólne, wywóz nieczystości, zaliczka na fundusz remontowy
Opłaty wg liczników prąd, woda
Liczba pięter w budynku 3
Stan lokalu bardzo dobry
Stan prawny Własność
Okna PCV
Instalacje dobre
Rok budowy 2010
Rodzaj lokalu jednopoziomowy
Przeznaczenie lokalu biurowo - magazynowy, biurowy, handlowo-usługowy, usługowy
Dojazd asfalt
Ogrzewanie centralne
Winda tak
Liczba wind 1
Usytuowanie dwustronne
Możliwość parkowania tak
Rolety antywłamaniowe tak
Położenie lokalu główna ulica handlowa
Witryna wystawowa duża
Wejście od ulicy
Podłogi panele

Pomieszczenia

Liczba pomieszczeń biurowych 4
Liczba pomieszczeń magazynowych 2
Liczba pomieszczeń socjalnych 1
Liczba pomieszczeń sanitarnych 3

Lokalizacja

Kalkulator kredytowy

PLN
%
Wysokość raty

Kalkulator kosztów

PLN
PLN
PLN
PLN
PLN
PLN
%
PLN
Podatek od czynności cywilno-prawnych
Taksa notarialna (opłata notarialna)
VAT od taksy notarialnej (opłaty notarialnej)
Wniosek do WKW
VAT od wniosku do WKW
Prowizja agencji nieruchomości
VAT od prowizji agencji nieruchomości
Wypisy aktu notarialnego - około
RAZEM (cena + opłaty)

Podobne oferty

lokal na sprzedaż - Kielce, Centrum

lokal na sprzedaż

Kielce, Centrum
  123,93 m2 10 399,42 zł/m2
lokal na sprzedaż - Kielce, Centrum

lokal na sprzedaż

Kielce, Centrum
  115,80 m2 7 124,35 zł/m2
lokal na sprzedaż - Kielce, Centrum

lokal na sprzedaż

Kielce, Centrum
  59,85 m2 12 531,33 zł/m2

Napisz do nas

Proszę wypełnić to pole
Proszę wypełnić to pole
Proszę wypełnić to pole
Proszę wypełnić to pole
Trwa wysyłanie...

Ta strona wykorzystuje pliki cookies w celach statystycznych oraz w celu dostosowania naszych serwisów do indywidualnych potrzeb klientów. Zmiany ustawień dotyczących plików cookie można dokonać w dowolnej chwili modyfikując ustawienia przeglądarki. Korzystanie z tej strony bez zmian ustawień dotyczących cookies oznacza, że będą one zapisane w pamięci urządzenia.

rozumiem