Kielce, Pod Telegrafem

Mieszkanie na sprzedaż

Opis nieruchomości

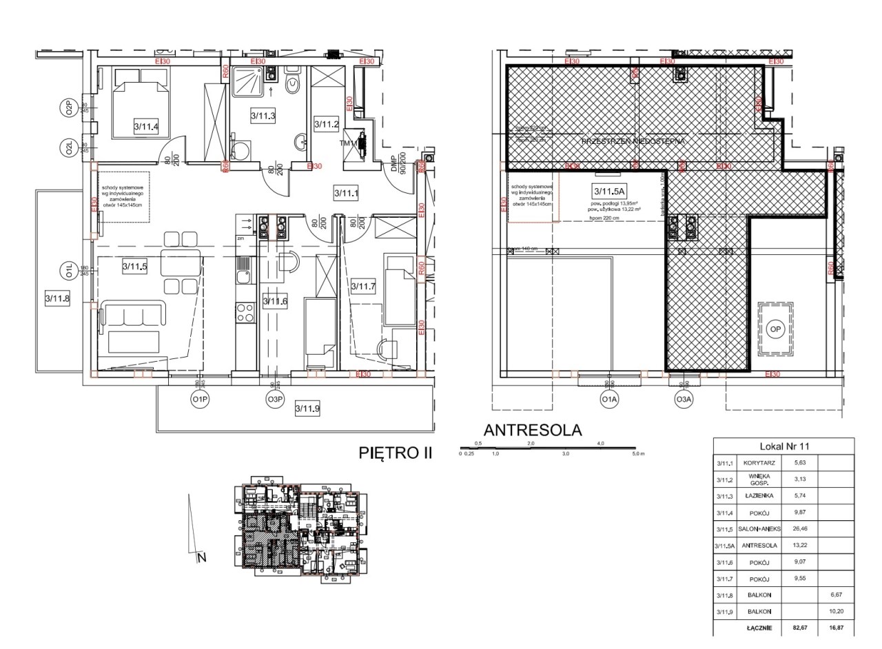
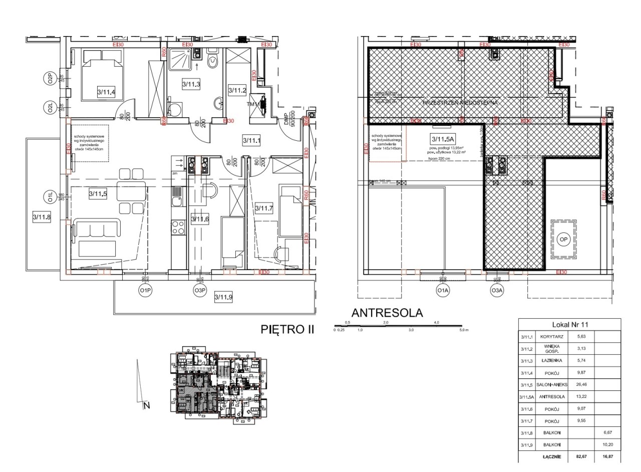
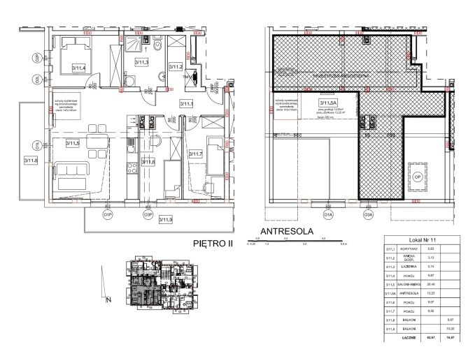
Na sprzedaż nowe 5 pokojowe mieszkanie o powierzchni 82,67 m2 zlokalizowane na II piętrze w kameralnej inwestycji deweloperskiej w dzielnicy Pod Telegrafem. Lokal składa się z salonu z aneksem kuchennym, 3 sypialni, antresoli (5 pokój) korytarza, wnęki gospodarczej, łazienki oraz 2 balkonów o powierzchni 6,67 m2 i 10,2 m2. Mieszkanie będzie oddane w stanie deweloperskim. Ogrzewanie i ciepła woda z własnej kotłowni gazowej dla całego budynku. Ekspozycja okien na południe oraz zachód. 
Budynek zlokalizowany w zielonej spokojnej okolicy jednocześnie w niedalekiej odległości do licznych punktów usługowych większych sklepów spożywczych typu Biedronka, Stokrotka, Lidl oraz punktów usługowych.
Planowany termin oddania inwestycji 31.12.2026 r.

Kontakt: 577 963 452

Nota prawna

Opis oferty zawarty na stronie internetowej sporządzany jest na podstawie oględzin nieruchomości oraz informacji uzyskanych od właściciela, może podlegać aktualizacji i nie stanowi oferty określonej w art. 66 i następnych K.C.

Szczegóły oferty

Symbol oferty ASN-MS-2133
Powierzchnia 82,67 m²
Powierzchnia użytkowa 82,67 m²
Powierzchnia balkonów/tarasów 16,87 m²
Liczba pokoi 5
Piętro 2
Rodzaj budynku apartamentowiec
Technologia budowlana beton, cegła
Standard
Opłaty w czynszu administracja, CO, Części wspólne, fundusz remontowy, Winda, wywóz śmieci, zaliczka na fundusz remontowy
Opłaty wg liczników prąd
Liczba pięter w budynku 2
Garaż garaż podziemny
Piwnica 1,59 m²
Stan lokalu deweloperski
Stan prawny Własność
Mies. czynsz admin. 600 PLN
Czynsz zimowy 600 PLN
Okna PCV 3 szyby, ciepły montaż
Instalacje nowe
Balkon jest
Liczba balkonów 2
Liczba tarasów 2
Rok budowy 2026
Widok na podwórko
Gaz jest
Woda jest
Dojazd asfalt
Otoczenie działki zabudowane
Ogrzewanie C.O. lokalne
Usytuowanie dwustronne
Drzwi antywłamaniowe tak
Przystosowania dla niepełnosprawnych tak

Pomieszczenia

Podłogi pokoi wylewka
Typ kuchni aneks kuchenny
Rodzaj kuchni aneks kuchenny - połączony z salonem
Podłoga kuchni wylewka
Typ łazienki razem z wc
Liczba łazienek 1
Glazura łazienki bez glazury
Podłoga łazienki wylewka
Liczba przedpokoi 1
Podłoga przedpokoi wylewka

Lokalizacja

Kalkulator kredytowy

PLN
%
Wysokość raty

Kalkulator kosztów

PLN
PLN
PLN
PLN
PLN
PLN
%
PLN
Podatek od czynności cywilno-prawnych
Taksa notarialna (opłata notarialna)
VAT od taksy notarialnej (opłaty notarialnej)
Wniosek do WKW
VAT od wniosku do WKW
Prowizja agencji nieruchomości
VAT od prowizji agencji nieruchomości
Wypisy aktu notarialnego - około
RAZEM (cena + opłaty)

Podobne oferty

mieszkanie na sprzedaż - Kielce, KSM

mieszkanie na sprzedaż

Kielce, KSM
4 pokoje 68,35 m2 9 200,00 zł/m2
mieszkanie na sprzedaż - Kielce, KSM, Zagórska

mieszkanie na sprzedaż

Kielce, KSM, Zagórska
4 pokoje 77,34 m2 8 300,00 zł/m2
mieszkanie na sprzedaż - Kielce, Centrum

mieszkanie na sprzedaż

Kielce, Centrum
2 pokoje 57,49 m2 11 741,17 zł/m2
video
mieszkanie na sprzedaż - Kielce, Ślichowice, Karbońska

mieszkanie na sprzedaż

Kielce, Ślichowice, Karbońska
4 pokoje 75,10 m2 8 788,28 zł/m2

Napisz do nas

Proszę wypełnić to pole
Proszę wypełnić to pole
Proszę wypełnić to pole
Proszę wypełnić to pole
Trwa wysyłanie...

Ta strona wykorzystuje pliki cookies w celach statystycznych oraz w celu dostosowania naszych serwisów do indywidualnych potrzeb klientów. Zmiany ustawień dotyczących plików cookie można dokonać w dowolnej chwili modyfikując ustawienia przeglądarki. Korzystanie z tej strony bez zmian ustawień dotyczących cookies oznacza, że będą one zapisane w pamięci urządzenia.

rozumiem